Featured Listing | 1110 445 W 2ND AVENUE
- lucyadirim
- Jun 15, 2017
- 1 min read
1110 445 W 2ND AVENUE | 1 Bed | 1 Bath
$799,000
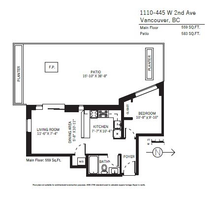
False Creek corner sub-Pent House is has an outdoor and indoor combined living space of 1,150 SqFt with a terrance that is nearly 600 SqFt. Includes 2 parking and 4 storage lockers. The building includes a concierge, fully equipped gym and a party room. Walk score of 96.


















































Comments